









































































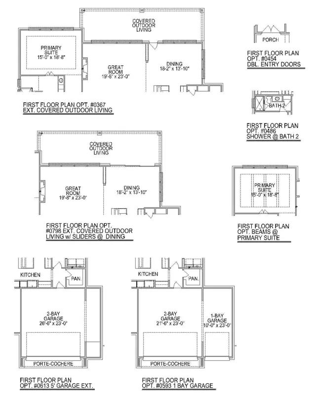
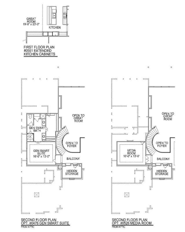
Open concept two-story has 5 bedroom (2 bedrooms down), 4.5 baths with a 3-car garage. This plan includes a covered patio, casual dining open to the spacious great room and kitchen, home office, game room, and hidden storage. Primary suite includes free standing tub, large walk-in closet and dual vanities. Options: extended covered patio, glass sliders at dining room with extended covered patio, double entry door, beams at primary suite, 5 ft. garage extension, 1-car garage, extended kitchen cabinets, media room, gen smart suite.
Stay informed with Livabl updates on new community details and available inventory.