











































































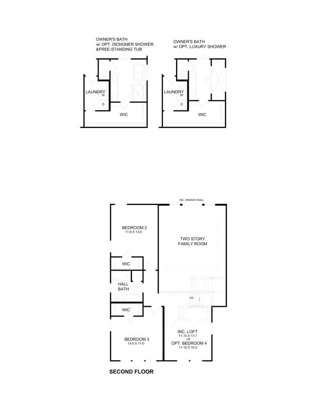
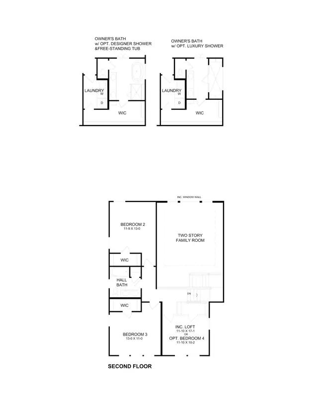
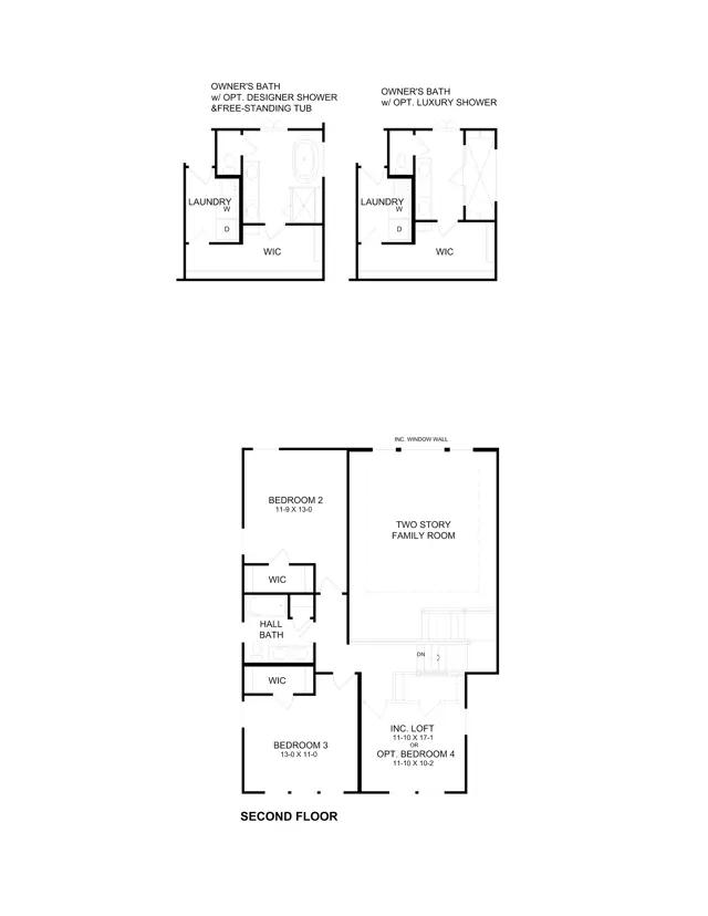
The Finley by Fischer Homes offers a beautifully designed layout featuring a first-floor primary suite for added convenience and privacy. The home boasts a two-story family room with 9-foot ceilings on the main level, creating a spacious and open atmosphere. Customize your space with options for a morning room or expanded primary suite. Upstairs, the included loft provides additional living space, with the option to convert it into a fourth bedroom. The Finley combines elegance, flexibility, and functionality to suit your lifestyle perfectly.
Stay informed with Livabl updates on new community details and available inventory.