














Get additional information including price lists and floor plans.



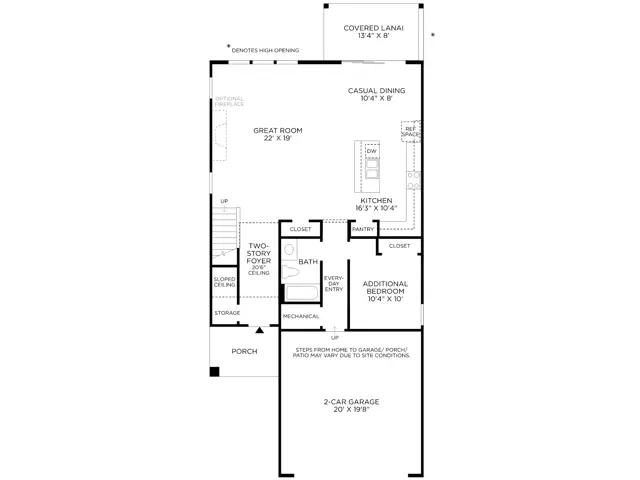
The heart of the Osprey design is an airy great room with access to a gorgeous covered lanai. The well-appointed kitchen overlooks a cozy casual dining area, and is complemented by a large center island with breakfast bar, ample counter and cabinet space, and a sizable pantry. Defining the superb primary bedroom suite is a generous walk-in closet and gorgeous primary bath with a dual-sink vanity, large luxe shower, and private water closet. Accessible to a spacious loft, secondary bedrooms feature walk-in closets and a shared hall bath with a dual-sink vanity. Additional highlights include an expansive flex room with adjacent workspace, a convenient powder room and everyday entry, easily-accessible laundry on the bedroom level, and ample additional storage.
Stay informed with Livabl updates on new community details and available inventory.