







































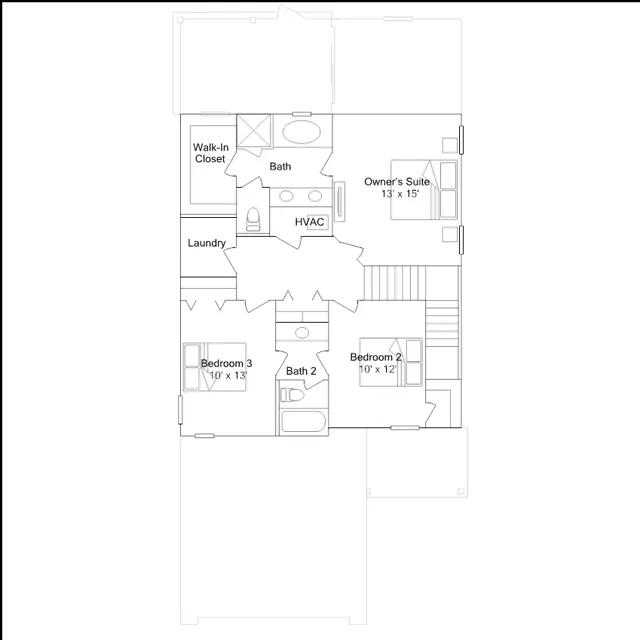
The first floor of this two-story home is host to an open-concept floorplan that combines the kitchen with the dining and living areas, and glass sliders offer access to a screened porch. A secondary bedroom and full bathroom are located off the foyer. Upstairs, there are three additional bedrooms, including the expansive owners suite.
Stay informed with Livabl updates on new community details and available inventory.