


















Images coming soon
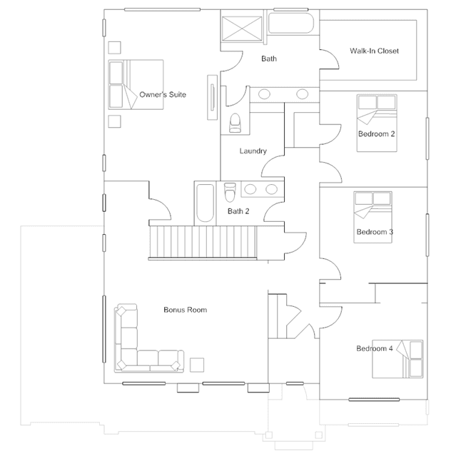
A spacious two-story home design, this single-family residence offers a smart layout with a flexible first-floor bedroom and modern open design among the gourmet kitchen, spacious Great Room and dining area. Upstairs a bonus room provides more living space surrounded by four bedrooms, including the lavish owners suite.