

























Images coming soon
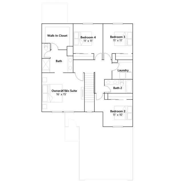
This two-story home features a Next Gen suite designed for multigenerational living, complete with private entrance, separate living area, bedroom and kitchenette. The main living area is host to an open-concept floorplan on the first floor, combining a kitchen, Great Room and dining room, with four bedrooms located upstairs, including the luxurious owners suite.
Stay informed with Livabl updates on new community details and available inventory.