
























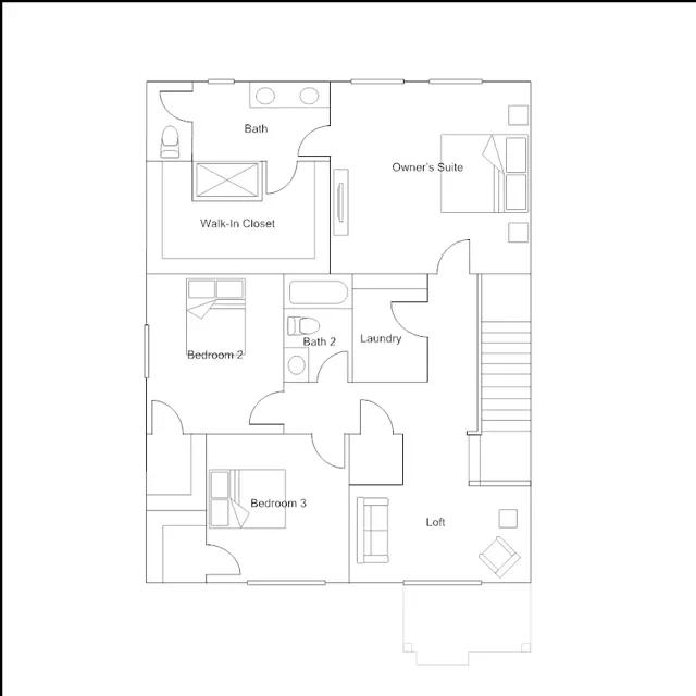
This two-story home provides a low maintenance layout, with an open-concept design on the first floor among the Great Room, dining area and kitchen that maximizes interior space. Upstairs is a loft along with all three bedrooms, including the owners suite.