
































































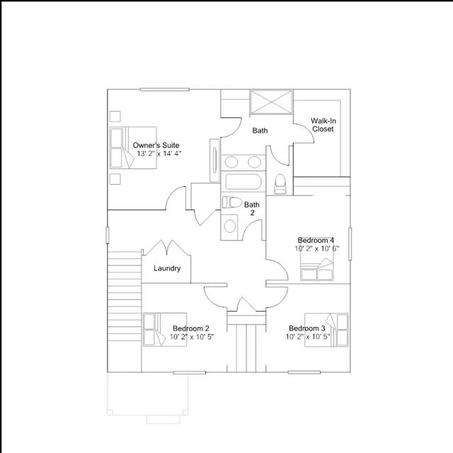
A spacious open floorplan serves as the heart of this two-story home, found on the first level and shared between the Great Room, kitchen and dining room. Sliding glass doors lead to a patio for seamless indoor-outdoor living and entertaining. All four bedrooms occupy the second level, including the luxe owners suite. The owners suite features a restful bedroom, en-suite bathroom with dual sinks and a walk-in closet.