



















































































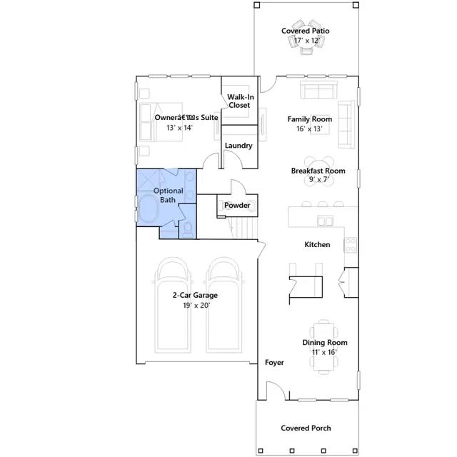
This new two-story home exudes elegance from the moment of entry. A formal dining room greets guests at the front, followed by a multifunctional kitchen overlooking the intimate breakfast room and sunny family room in an open design. A desirable covered patio extends the home to the outdoors. The main-floor owners suite provides a restful retreat. Residing upstairs are all four secondary bedrooms, three of which enjoy direct access to an attached bathroom for enhanced livability.
Stay informed with Livabl updates on new community details and available inventory.