














































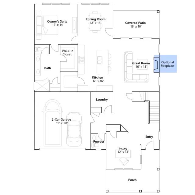
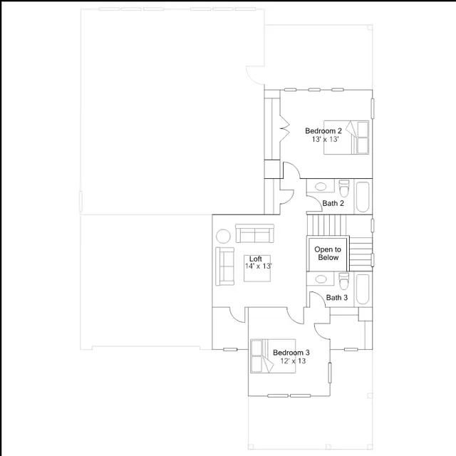
This two-story home showcases a convenient study for at-home work upon entry, followed by a spacious open Great Room with a center fireplace, kitchen and dining room. Completing the first level is the owners suite with a full bathroom tucked away in the back for extra privacy. A front porch and rear covered patio expand the home for outdoor relaxation. Upstairs is a loft surrounded by two comfortable bedrooms.
Stay informed with Livabl updates on new community details and available inventory.