





































































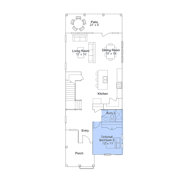
This spacious two-story home features a sun-drenched study, followed by an open main living space that includes a chef-ready kitchen, inviting living room and an intimate dining room. A door to the patio extends the home for outdoor activities. Upstairs is a versatile loft surrounded by two secondary bedrooms and the private owners suite, which includes an adjoining bathroom and walk-in closet.
Stay informed with Livabl updates on new community details and available inventory.