






























Get additional information including price lists and floor plans.
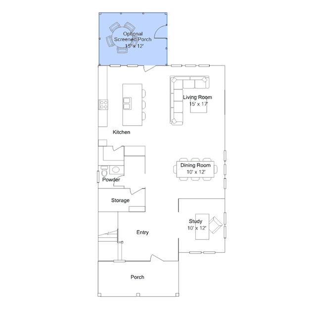
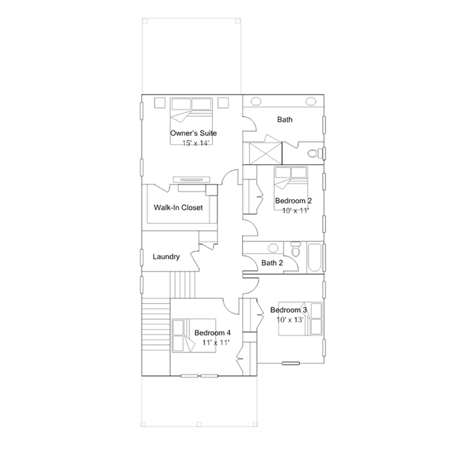
This two-story home features a convenient office for at-home assignments and an open living space that extends to the covered porch for outdoor entertaining. On the second floor are three secondary bedrooms and the owners suite. A two-car detached garage completes the home.
Stay informed with Livabl updates on new community details and available inventory.