























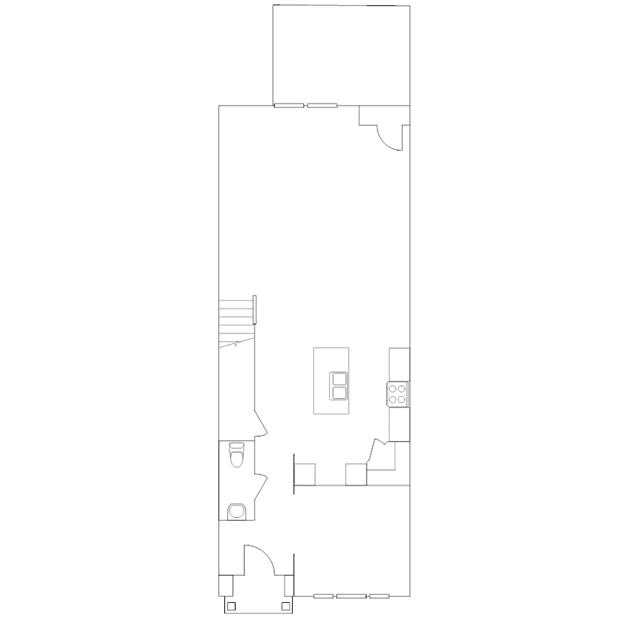
Upon entry of this new two-story home is a den ideal for at-home work, followed by the kitchen, breakfast area and family room arranged in a desirable open floorplan that promotes seamless transition between spaces. A rear patio expands the home for outdoor activities. Three peaceful bedrooms occupy the second floor, including the owners suite with an adjoining bathroom and walk-in closet.