
































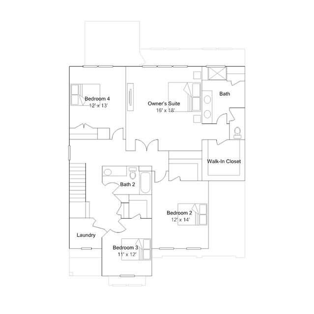
This three-story home features a study, formal dining room and an open concept living space with a breakfast nook that connects to the outdoor patio. On the second floor are four comfortable bedrooms including the airy owners suite, while a loft and bedroom suite is on the third level.