




















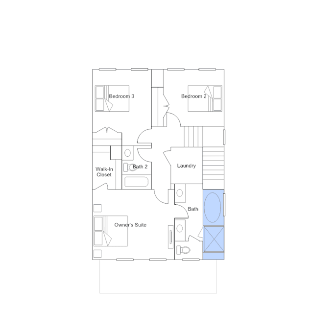
This cozy two-story home features an open-concept layout among the family room, breakfast room and kitchen, with access to the patio for indoor-outdoor living. In addition to the upstairs owners suite with an adjoining bathroom and walk-in closet, there are two secondary bedrooms to provide restful retreats to family members or guests. A two-car detached garage completes the home.