































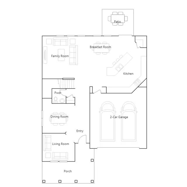
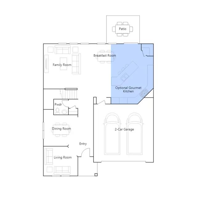
This two-story home features an open living space in the family room, kitchen and breakfast area with sliding doors that extend to the outdoor patio. Near the entryway is a cozy living room and formal dining room ready to be transformed. Upstairs is an oversized bonus room and four bedrooms.