















































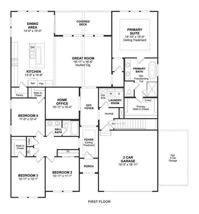
Sun-drenched great room with vaulted ceiling. Open-concept kitchen with large island and dining area, perfect for gathering friends and family. Tranquil primary suite with serene, spa-like bath featuring dual vanity sinks and an optional freestanding tub. Private home office makes working from home easy. Included oversized covered deck perfect for backyard barbecues. Versatile HovHall provides extra storage space between laundry room and 2-car garage.
Stay informed with Livabl updates on new community details and available inventory.