



















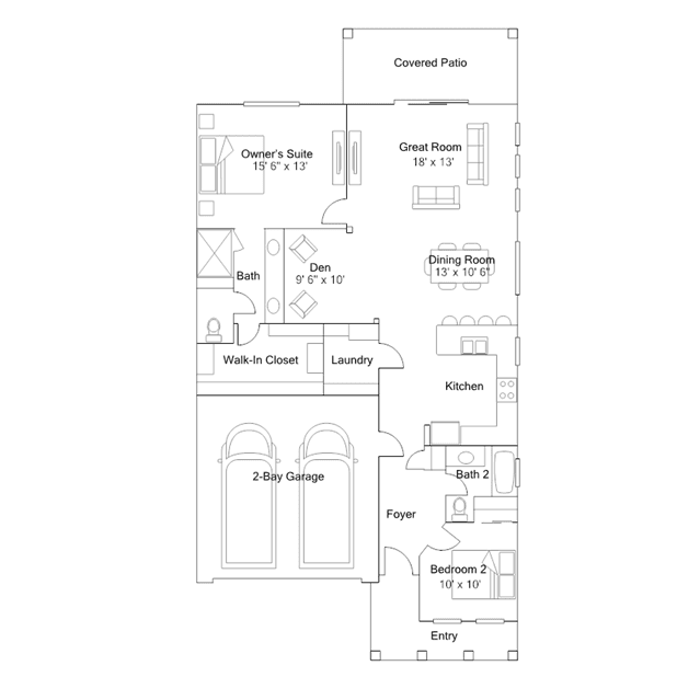
This single-story home has a smart layout with the owners suite in the back of the home for added privacy and another bedroom just off the foyer. The heart of the home is an open living area that includes the kitchen, dining room, den and Great Room with access to the covered patio.