




















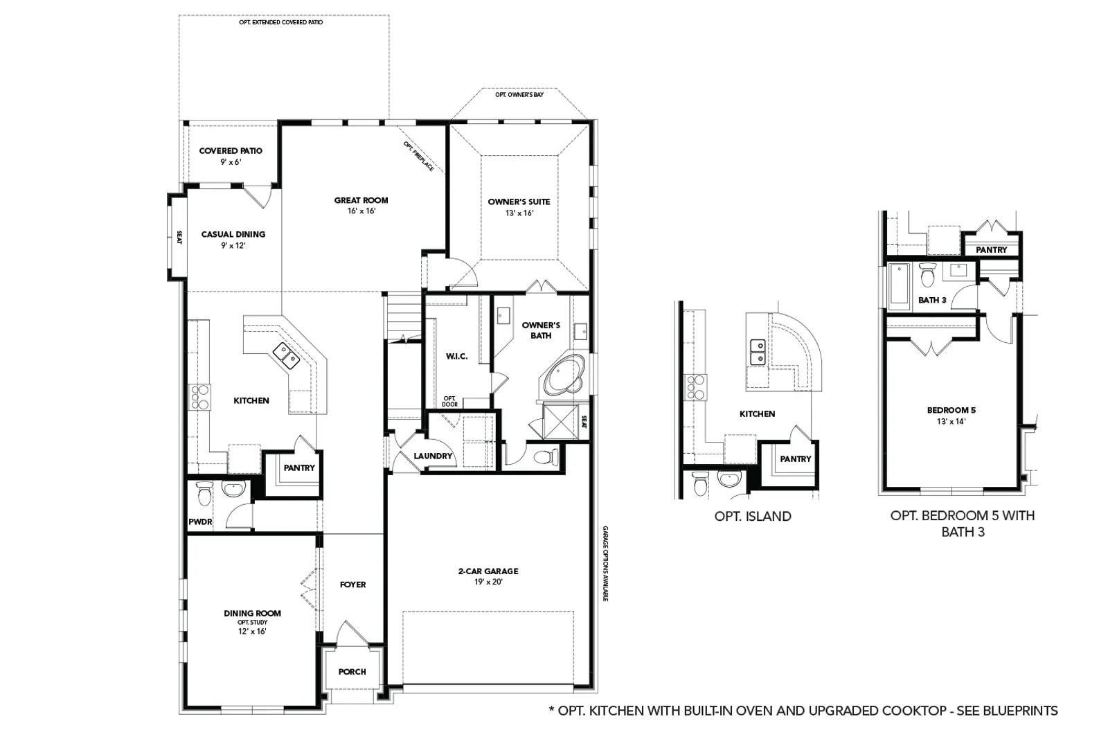
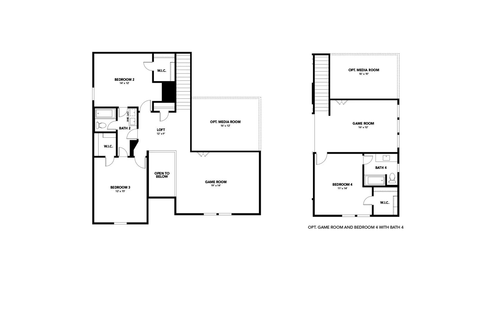
Bright, open, and beautifully livable, the Magnolia offers generous space in a layout that feels both elegant and easygoing. The kitchen anchors the home with an oversized island and abundant counter space, flowing seamlessly into the family and dining areas. A private owners suite at the rear of the home features a spacious bath and an expansive closet, while a formal dining room offers easy entertaining or choose this space for a home office. Two bedrooms, an oversized game room, and cozy loft can be found upstairs. This plan includes a variety of choices, such as adding a fourth or fifth bedroom, a fun media room or even a convenient opening from the owners closet to the laundry room. Whether youre gathering with friends or enjoying a quiet evening in, the Magnolia adapts beautifully.
Stay informed with Livabl updates on new community details and available inventory.