



































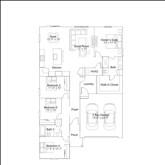
This single-level home features a modern and low-maintenance design. Three secondary bedrooms share a private hallway off the entry, just steps from a full bathroom, leading to an open-concept floorplan shared between the kitchen, living and dining areas. The luxurious owners suite is nestled into a private back corner, offering direct access to an en-suite bathroom and walk-in closet.
Stay informed with Livabl updates on new community details and available inventory.