



























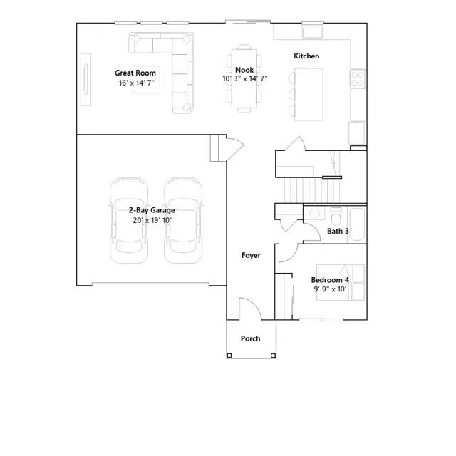
Two secondary bedrooms located off the foyer of this single-level home provide an ideal space for younger family members, overnight guests or a home office. Down the hall, a generous open floorplan hosts the living and dining spaces while sliding glass doors lead directly to a covered deck. A third bedroom the owners suite is a luxurious retreat.
Stay informed with Livabl updates on new community details and available inventory.