



























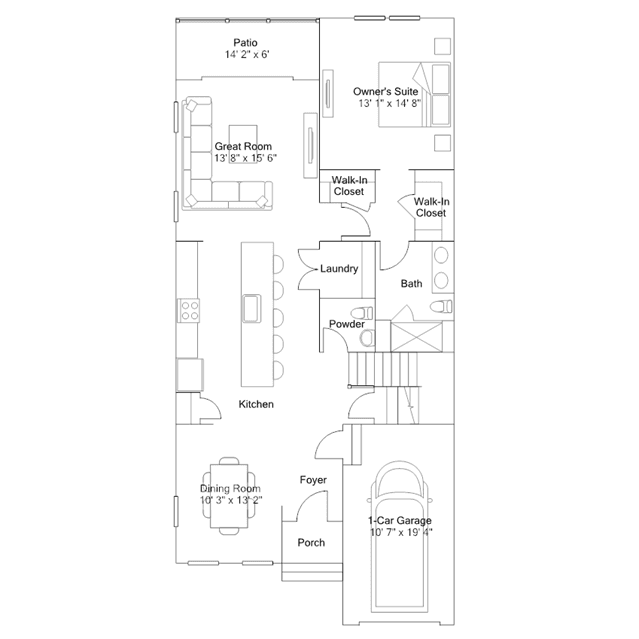
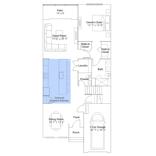
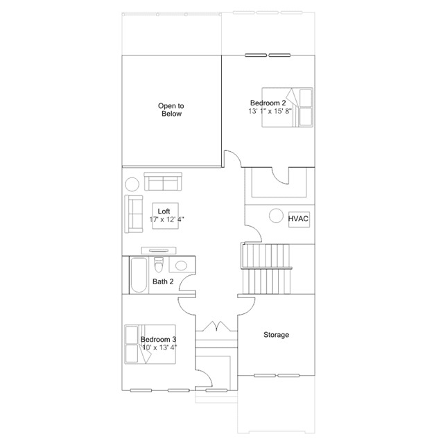
The two-story home features a layout that works well for families, busy professionals and all lifestyle types. On the first floor is the dining room which flows in the kitchen with large island and Great Room with access to a covered patio. The owner's suite is also tucked on the first level and features two walk-in closets. Upstairs is a loft surrounded by two secondary bedrooms, each with walk-in closets.