




































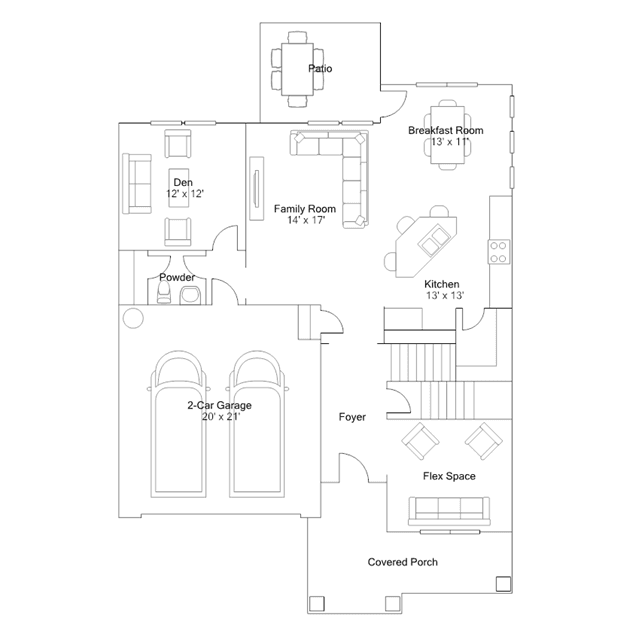
This new two-story home is designed for family enjoyment, with an unfinished basement offering versatility. The first floor features an open-plan layout among the family room, spacious kitchen and breakfast room as well as a den and flex space. A covered front porch and a back patio enhance outdoor enjoyment. Upstairs are a large owners suite and three secondary bedrooms. Options include the addition of a guest suite and study.