



































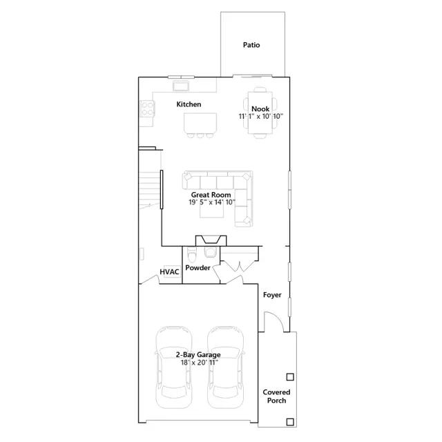
The Great Room, kitchen and dining room are situated among a convenient and contemporary open floorplan on the first level of this two-story home, while sliding glass doors lead to the patio. All four bedrooms are found upstairs, including the luxe owners suite which is comprised of a restful bedroom, en-suite bathroom and walk-in closet.
Stay informed with Livabl updates on new community details and available inventory.