




























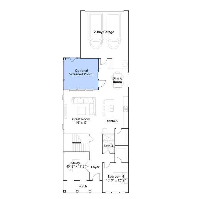
This new two-story home design is both stylish and practical. The first floor features an open-plan layout among a Great Room, kitchen and casual dining area for shared moments with family and friends. A covered porch enhances outdoor enjoyment. A private study and a secluded guest suite are situated off the foyer. Upstairs are a versatile loft, two secondary bedrooms and a spacious owners suite with a luxe bathroom and large walk-in closet.
Stay informed with Livabl updates on new community details and available inventory.