


































Get additional information including price lists and floor plans.
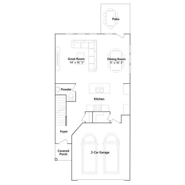
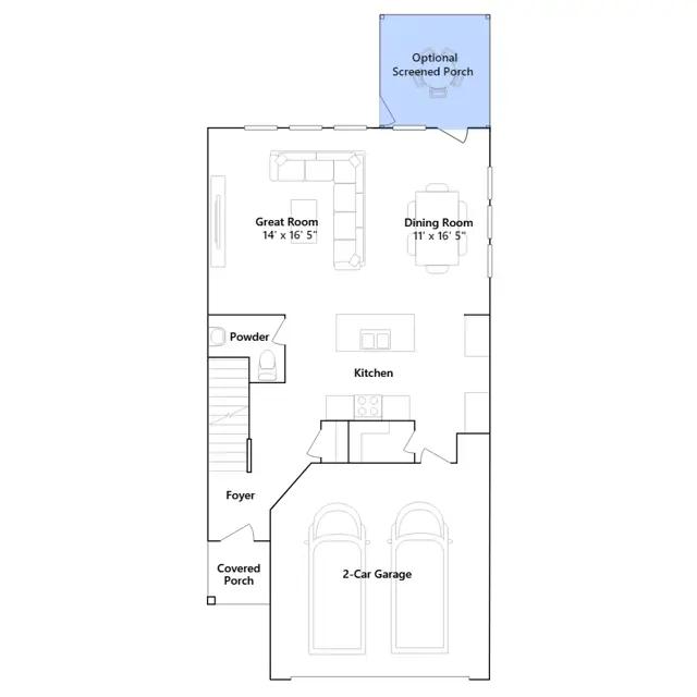
This two-story home boasts a great layout with the main level dedicated to shared living. An open layout flows from the entry to the kitchen with island, Great Room and dining area, then out to the back patio. On the second floor is a central loft surrounded by all three bedrooms including the lavish owners suite. Optional upgrades available at select homesites.
Stay informed with Livabl updates on new community details and available inventory.