











































Get additional information including price lists and floor plans.
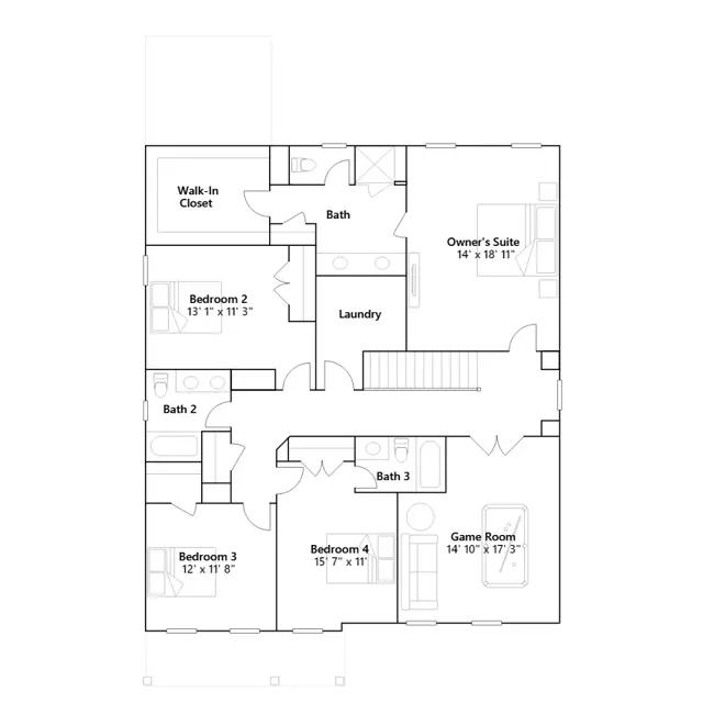
Casual elegance is the order of the day at this new two-story home. The first floor features an open-plan main living area, a formal dining room, a secluded bedroom for guests and a patio for outdoor living. Upstairs are the owners suite, secondary bedrooms and a versatile game room
Stay informed with Livabl updates on new community details and available inventory.