









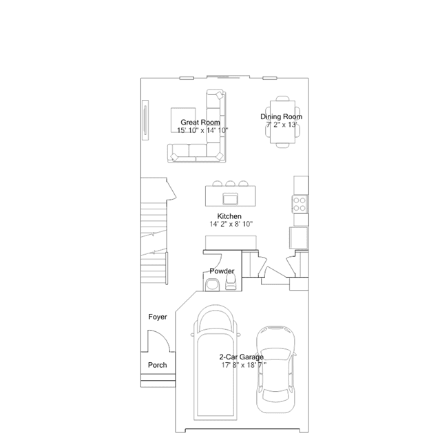
This new two-story home is designed for comfort. The first floor hosts an open concept layout among the Great Room, dining room and kitchen, with an optional deck for outdoor activities. On the top floor is the luxe owners suite with a private sitting area and spa-inspired bathroom, along with two secondary bedrooms and a loft for additional shared living space.