































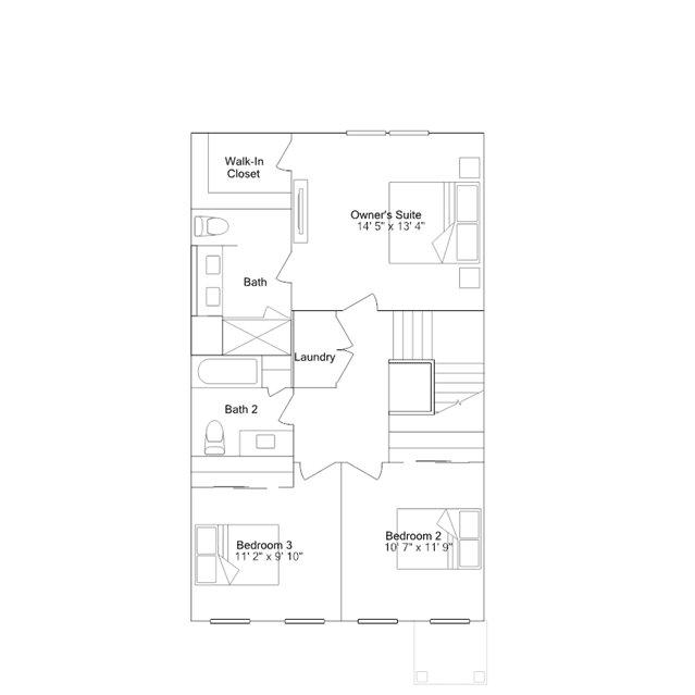
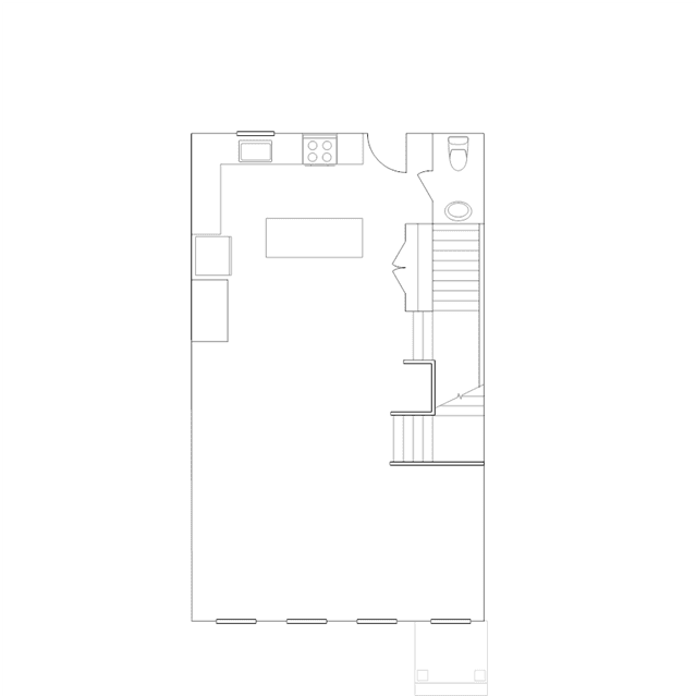
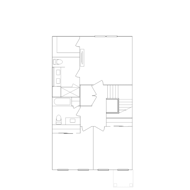
This three-story townhome features a spacious bonus room with convenient access to a rear entryway and the two-car garage. Upstairs is an open living room, dining room and kitchen, along with an optional deck for outdoor living. On the top floor are all three bedrooms, including the owners suite with a spa-inspired bathroom.