















































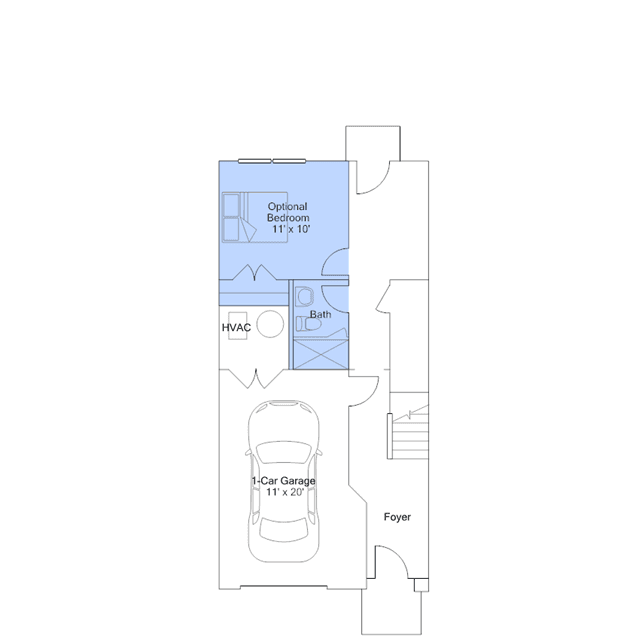
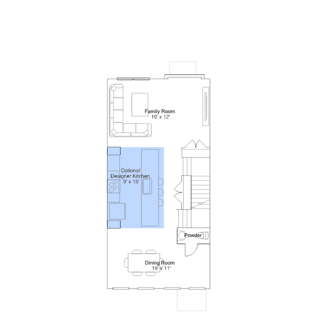
This three-story townhome features a spacious recreation room with a convenient back entrance on the first floor. Upstairs is an open family room, dining room and kitchen, along with an optional deck for outdoor living. On the top floor is the luxe owners suite and two bedrooms.