





























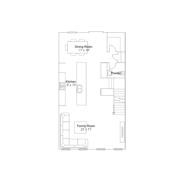
This three-story townhome features a modern, open-concept design that provides ample room to grow and entertain. The foyer leads to a spacious recreation room and a two-car garage on the first level, while upstairs is the main living area of the home. A sun-drenched family room blends effortlessly into a well-equipped kitchen and dining room with glass sliders to provide seamless transitions between spaces. Occupying the top floor is a private owners suite with an en-suite bathroom and two secondary bedrooms. Select homesites feature an optional fourth-floor loft with a desirable roof deck.