











































































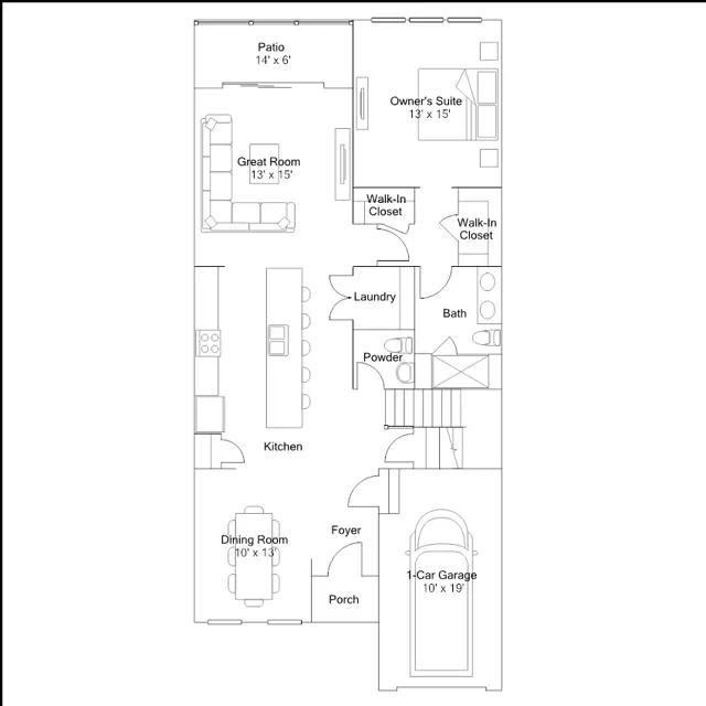
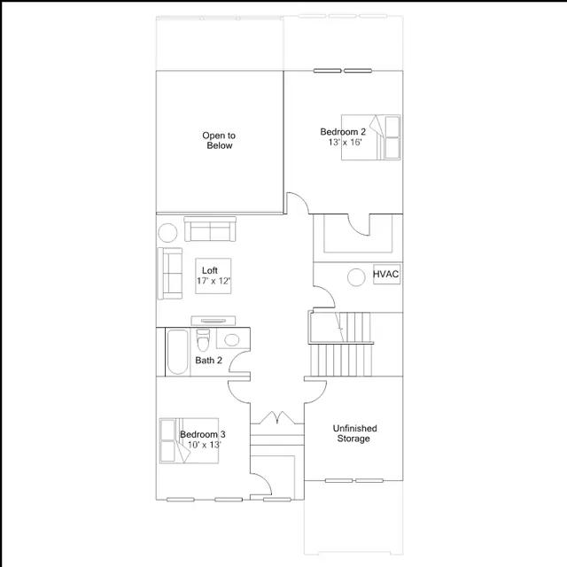
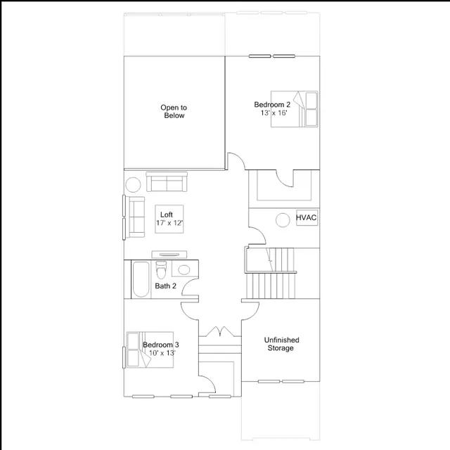
This two-story townhome features a generous open floorplan shared between the dining room, kitchen and double-height Great Room on the first level. Through sliding glass doors is a patio for indoor-outdoor activities. The owners suite with a convenient full-sized bathroom is situated toward the back, affording homeowners maximum privacy away from the remaining bedrooms. Occupying the top level are two secondary bedrooms and a loft for extra shared living space.