

















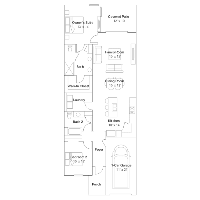
This convenient single-story home features two bedrooms, including a privately situated owners suite with an attached full bathroom and walk-in closet. On the opposite side, there is an open floorplan showcasing the stylish kitchen, dining room and inviting family room in a cohesive flow to deliver seamless everyday living. Nearby are glass-sliders that lead to a cozy covered patio, ideal for outdoor activities.