
























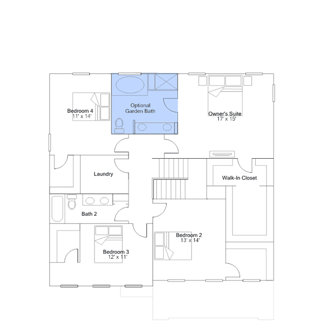
This new two-story home design is all about gracious living. The first floor showcases an open-concept layout among a kitchen for inspired cooks, a breakfast nook for casual meals and a Great Room for shared moments. A formal dining room for memorable meals and an office for at-home work are situated off the foyer. Upstairs, four bedrooms including the owners suite all feature walk-in closets. An unfinished basement is full of possibilities.