































Get additional information including price lists and floor plans.

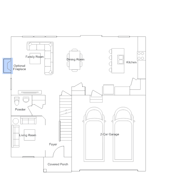
This two-story home provides modern comfort and ample room to grow. Upon entry is a flex room well-suited for hosting guests, followed by a spacious open layout for seamless family living and relaxing. Separate from the downstairs main living area, the second level hosts all four bedrooms to provide great personal space and privacy. The sprawling owners suite is a serene haven with a full-sized bathroom and walk-in closet. A two-car garage completes the home.
Stay informed with Livabl updates on new community details and available inventory.