














































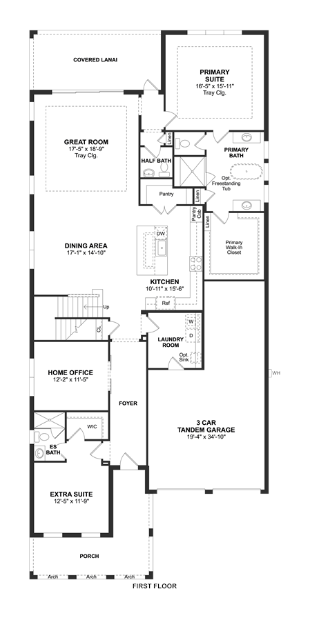
Extra Suite with private bath and walk-in closet for guests. Designer kitchen with large counterspace, center island and pantry. Spacious great room with tray ceiling and access to covered lanai. Primarysuite with bath featuring large shower and dual sinks. Versatile loft space for relaxing or entertaining. Second story media room with optional barn doors for movie nights.
Stay informed with Livabl updates on new community details and available inventory.