














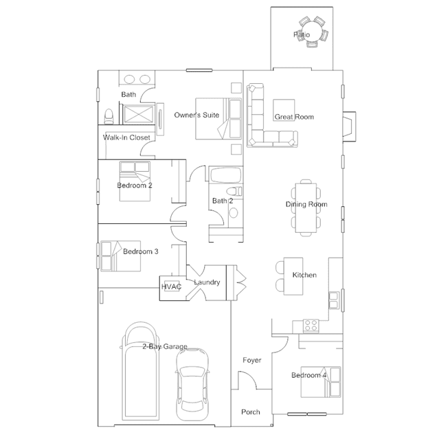
This single-story home is great for families, offering a kitchen, Great Room and dining space that effortlessly flow into a patio for outdoor experiences. Four bedrooms, including a luxe owners suite and a separate room great for guests or as a hobby area, optimize the space for shared living. Two and three-bay garage floorplans are available for added storage and car enthusiasts.