





















































Get additional information including price lists and floor plans.
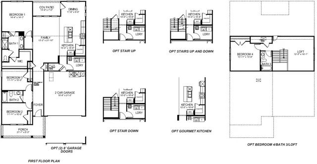
The Lawson is a two-story home offered at Westport in York, SC. This new two-story plan offers four bedrooms, including one on the main level, as well as three bathrooms, a loft and a two-car garage. As you step onto the porch and into the home, youll be greeted by an inviting foyer and a bedroom perfect for a guest room or a home office. You are then welcomed into a spacious family room area that opens to the kitchen area. The chefs kitchen is equipped with stainless steel appliance, large granite countertops with tile backsplash, ample storage space, a walk-in pantry, and a kitchen island. Upstairs the primary bedroom offers a large en-suite bathroom with a soaking tub and shower, and large walk-in closet. The additional two bedrooms provide comfort and privacy for every household member long with a bathroom and convenient laundry room. A loft space on the se...
Stay informed with Livabl updates on new community details and available inventory.