

































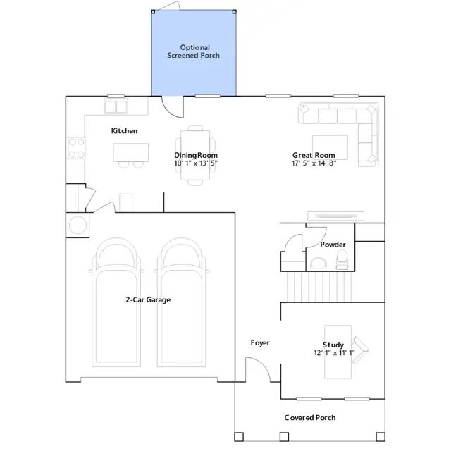
This new two-story home optimizes space for increased tranquility. The first floor features an open floorplan among the Great Room, kitchen and dining room in a contemporary style that prioritizes functionality. An attached patio offers indoor-outdoor living and entertaining, while a study is ideal for at-home work. Four upstairs bedrooms surround a versatile loft and provide serenity, including the owners suite with a private bathroom and large walk-in closet.