










































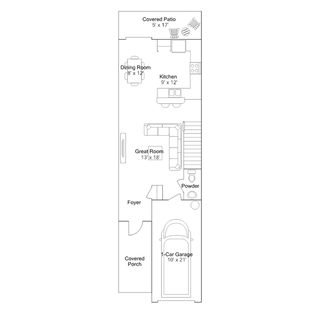
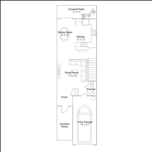
This contemporary two-story townhome enjoys a free-flowing layout among the main-floor kitchen, Great Room and covered patio. The top floor features the spacious owners suite, two secondary bedrooms and a versatile loft space perfect as a home office or additional shared living area.