














































Images coming soon
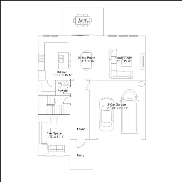
This new two-story home showcases a gracious design. The first floor features an open layout among a large kitchen, dining room and family room, plus a versatile flex space and a rear lanai for outdoor enjoyment. Ideally situated upstairs to provide maximum privacy are all four bedrooms, including the lavish owners suite with an en-suite bathroom and an expansive walk-in closet fit for any fashion enthusiast. Completing the home is a two-car garage for storage room.
Stay informed with Livabl updates on new community details and available inventory.