


































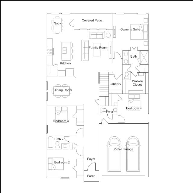
This two-story home has a convenient layout that offers endless possibilities. On the first floor are four bedrooms, including the owners suite with an en-suite bathroom and walk-in closet, as well as an open-concept living area with a formal dining room attached. Upstairs is a versatile game room that can easily serve as a home office or storage area.
Stay informed with Livabl updates on new community details and available inventory.