
























































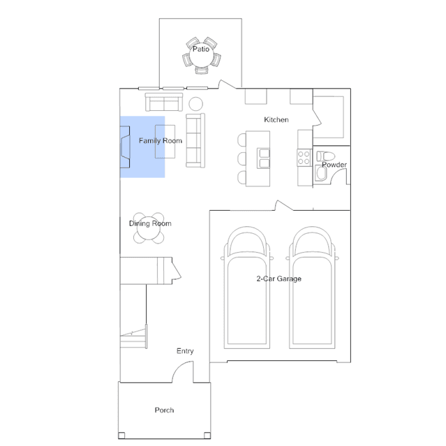
This two-story home features an elegant double-height entryway that flows to the open layout among the dining room, kitchen and family room, with access to the outdoor patio. In addition to the owners suite on the second floor, there is a loft area and three secondary bedrooms.
Stay informed with Livabl updates on new community details and available inventory.