










































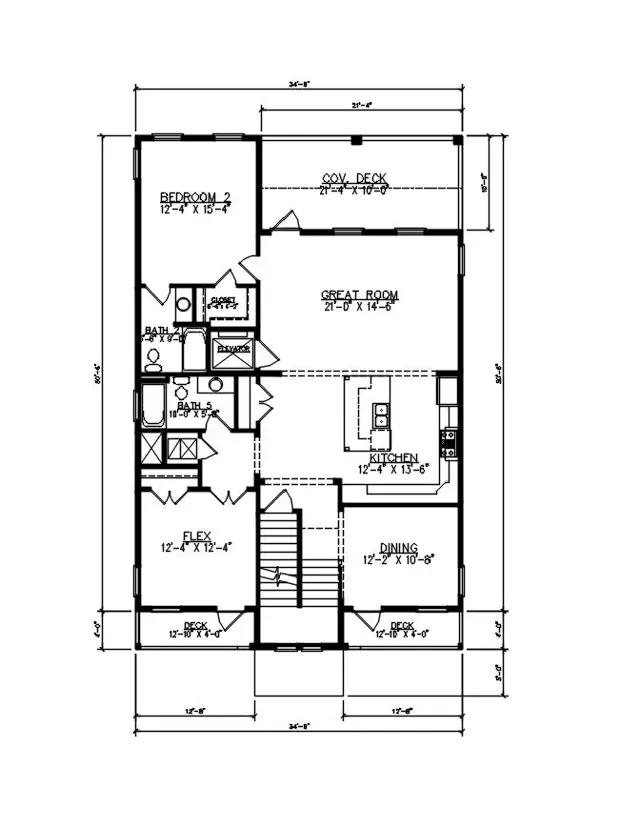
Welcome to the Cape, a new home floor plan at Bluewater Landing in Santa Rosa Beach. This is a contemporary style coastal new home that is the ideal beach getaway. With a spacious floorplan of almost 4000 sq t, this beautiful residence features 4 large bedrooms, 6 full bathrooms, and 2 flexible living spaces complemented by a 2 single-car garages. Take in the sunshine and breathtaking views from one of the oversized balconies or gather in the open plan living room for a relaxed and comfortable lifestyle. The expertly designed kitchen, complete with a large island, provides both functionality and style, making it the perfect space for entertaining guests. With thoughtful design elements that ensure privacy for all, this is the perfect place to call home.