























































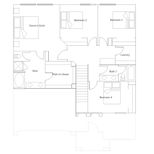
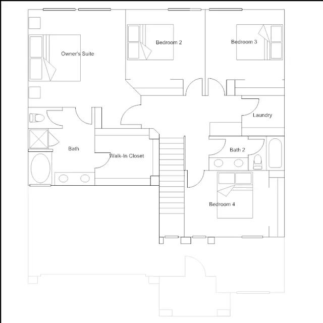
A formal dining room and versatile living room are situated off the entryway of this two-story home, while the more casual Great Room, dining nook and kitchen are situated at the back with access to the outdoor space through sliding glass doors. Four bedrooms occupy the second floor, including the luxurious owners suite.
Stay informed with Livabl updates on new community details and available inventory.