hero-image-0

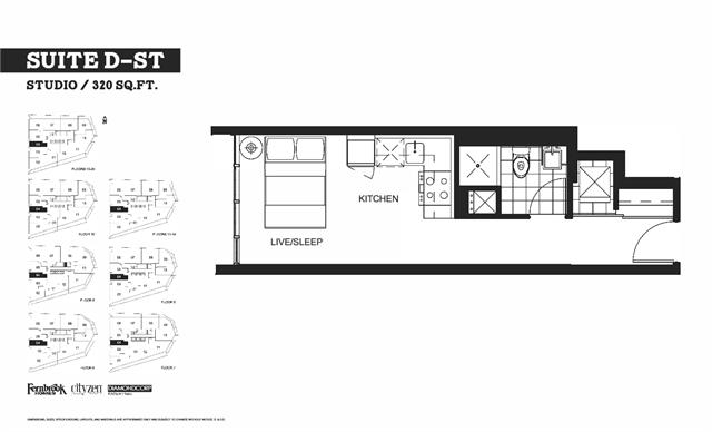
Suite D ST Plan

Garrison Point
Sold
Sold
1
1
From 320
unit-banner-imageunit-banner-imageunit-banner-image
Suite D ST Plan details
Suite D ST Plan is now sold.
Check out available nearby plans below.