hero-image-0

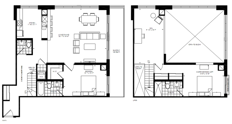
L D1c Plan

The Station
Sold
Sold
2
1
From 1,706
unit-banner-imageunit-banner-imageunit-banner-image
L D1c Plan details
L D1c Plan is now sold.
Check out available nearby plans below.