



















































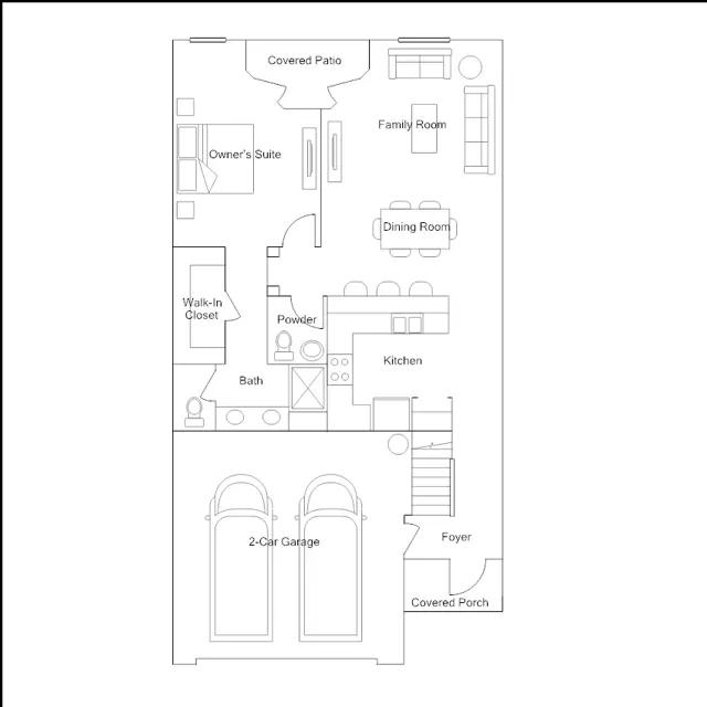
This new two-story home features an open-concept layout on the first floor, seamlessly combining the kitchen, dining room and family room. The owners suite is tucked into a private rear corner, complete with a spa-inspired bathroom, walk-in closet and access to a covered patio. Upstairs, three additional bedrooms surround a versatile loft, with a nearby study providing the ideal space for a studio or home office.
Stay informed with Livabl updates on new community details and available inventory.